當麻スポーツセンタートイレ改修工事のお知らせ
トイレの改修工事進捗状況について
令和8年2月26日現在、1階トイレの工事が完了し、使用可能になりました。
引き続き、2階トイレの工事を着工しています。
来館される皆さまにはご迷惑をおかけしますが、ご協力のほどよろしくお願いします。
工事の内容
工事場所
トイレ(2階)
工事期間 ※変更になる場合があります
2階トイレ:令和8年3月上旬~3月下旬まで(予定)
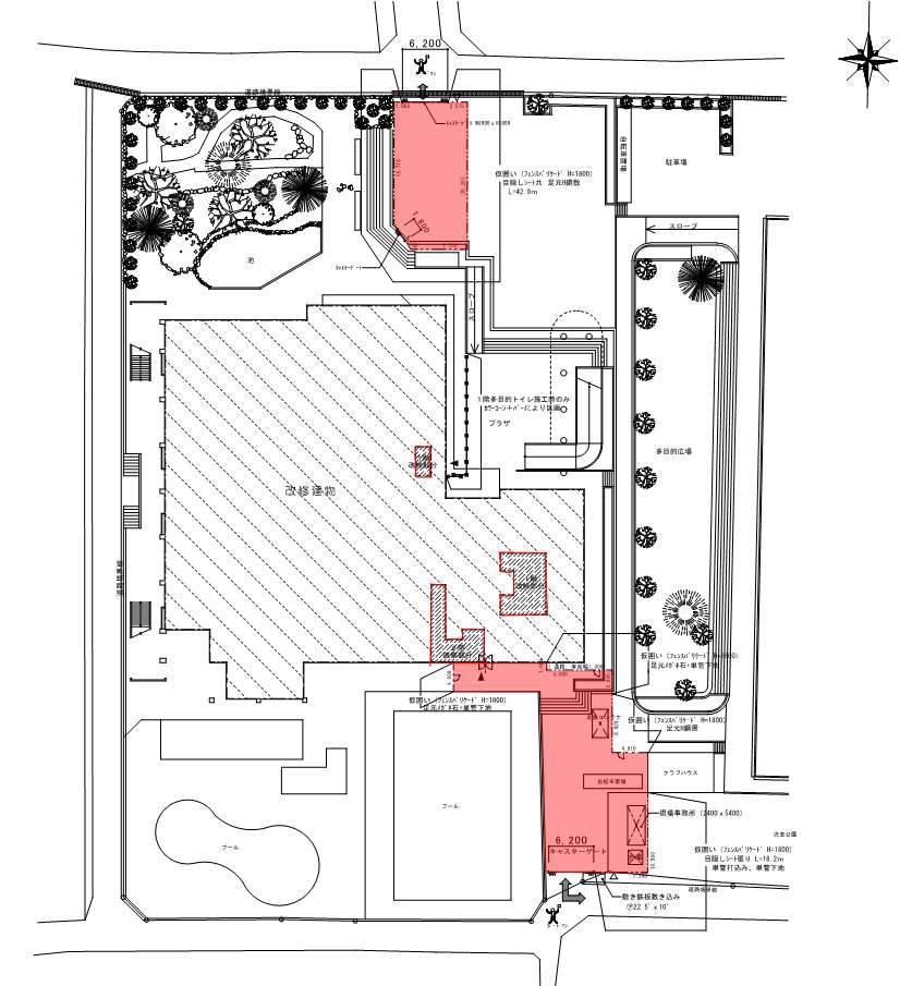
2階トイレは使用ができません。また、下図の赤枠部分は通り抜けできなくなります。

この記事に関するお問い合わせ先
スポーツ振興課
奈良県葛城市竹内689番地
電話番号:0745-48-6600
ファクス番号:0745-48-6196
メールフォームによるお問い合わせ













更新日:2026年03月02日